3 BED Detached house For Sale

£675,000 Offers over

Poole

A beautifully-presented modern (built in 2010) detached thatched home with a superb studio outbuilding, tucked away in a sought-after village. With a contemporary kitchen with tri-fold doors, spacious living areas with integrated wood burner, and three double bedrooms.

Contact Sales Head of Sales, Blandford
Stuart Bramley

Property details

Inside

A beautifully presented modern DETACHED THATCHED HOME (built in 2010) that combines classic Dorset character with a smart, contemporary interior. The house has been impeccably maintained and modernised throughout, creating a bright, spacious, and comfortable living environment.

The SITTING ROOM enjoys a wonderful sense of light, with wide glazed doors opening to the garden and an integrated wood burner forming a natural focal point. It is an inviting and well-proportioned space, ideal for both relaxation and entertaining.

The KITCHEN is stylish and practical, fitted with quality units, a range of white goods including a five-ring gas hob and cooker and a useful, sociable breakfast bar and island. There is also space for a breakfast table or, as the current owners have configured it, a relaxed seating area overlooking the rear garden via tri-folding doors that bring the outside in. The DINING ROOM sits alongside, providing a warm and elegant setting for family meals or gatherings.

The ground floor also includes a UTILITY ROOM and a CLOAKROOM/W.C., both finished to the same exacting standard as the rest of the home.

Upstairs, the PRINCIPAL BEDROOM benefits from a calm, refined feel. The DRESSING ROOM, originally the fourth bedroom, has been cleverly reconfigured to complement the principal suite beautifully, offering generous storage and an elegant sense of flow. The layout still allows for an easy return to a four-bedroom format if desired.

BEDROOM TWO is a generous double room, well-proportioned and finished in soft, neutral tones and includes a well-appointed EN SUITE with a shower cubicle, W.C., and wash hand basin. BEDROOM THREE is another double room with a rear aspect, currently utilised as a home office. The FAMILY BATHROOM is partially tiled and contemporary in style, finished to the same high standard as the rest of the home. It features a large, deep freestanding bath with an overhead shower, W.C., and wash hand basin.

Outside

Outside, the property continues to impress. A generous driveway provides ample parking and access to a single GARAGE. Beyond this lies a substantial STUDIO/OUTBUILDING, currently used as a gym, offering excellent flexibility for hobbies, home working, or creative use. There is also a hot tub, ideal for enjoying the seclusion and relaxation of your surroundings. The gardens are private, neatly landscaped, and arranged to provide pleasant areas for seating and relaxation.

This is a home that delivers all the charm of a traditional thatched cottage combined with the comfort, practicality, and visual appeal of a high-quality modern renovation. It stands as an ideal blend of period character and contemporary finish, perfect for buyers seeking something special in a well-connected Dorset village.

Location

The property is quietly situated and discreetly tucked away, Lytchett Matravers is a highly regarded and well-served Dorset village, positioned between Poole and Blandford Forum and surrounded by rolling countryside. It offers the charm of rural living with the convenience of easy access to key routes, including the A31 and A350, making it ideal for those who commute to Poole, Bournemouth, or Dorchester.

The village itself has a strong community spirit and an excellent range of amenities. These include a well-stocked village store and post office, a popular pub, a pharmacy, and several takeaways and local services. Families are particularly drawn to Lytchett Matravers thanks to its well-regarded schools, including Lytchett Matravers Primary and the sought-after Lytchett Minster Secondary School.

There are numerous countryside walks and bridleways on the doorstep, while the coast at Poole Harbour and the natural beauty of the Purbeck Hills are only a short drive away. Together, these features make Lytchett Matravers one of the area’s most desirable and practical villages, combining everyday convenience with an authentic Dorset village setting.

Directions

Use what3words.com to navigate to the exact spot. Search using: eventful.carpeted.introduce

Material Information

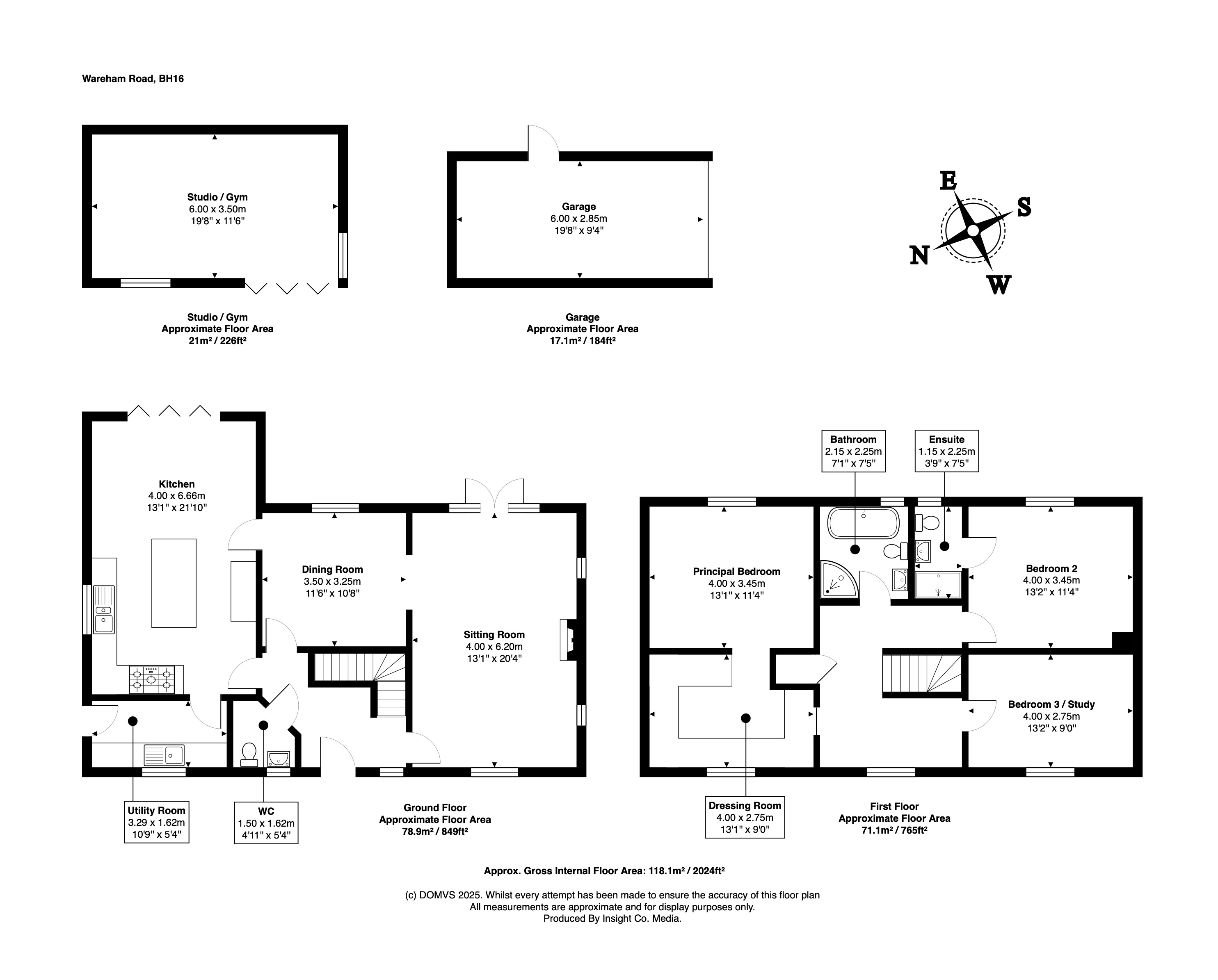
ROOM MEASUREMENTS: Please refer to floor plan.

SERVICES: Mains drainage, gas and electricity. Gas central heating.

LOCAL AUTHORITY: Dorset Council. Tax band F.

BROADBAND: Standard download 5 Mbps, upload 0.7 Mbps. Superfast download 80 Mbps, upload 20 Mbps. Ultrafast download 1000 Mbps, upload 1000 Mbps. Please note all available speeds quoted are 'up to'.

MOBILE PHONE COVERAGE: For further information please go to Ofcom website.

TENURE: Freehold.

LETTINGS: Should you be interested in acquiring a Buy-to-Let investment, and would appreciate advice regarding the current rental market, possible yields, legislation for landlords and how to make a property safe and compliant for tenants, then find out about our Investor Club from our expert, Alexandra Holland. Alexandra will be pleased to provide you with additional, personalised support; just call her on the branch telephone number to take the next step.

IMPORTANT NOTICE: DOMVS and its Clients give notice that: they have no authority to make or give any representations or warranties in relation to the property. These particulars do not form part of any offer or contract and must not be relied upon as statements or representations of fact. Any areas, measurements or distances are approximate. The text, photographs (including any AI photography) and plans are for guidance only and are not necessarily comprehensive. It should not be assumed that the property has all necessary Planning, Building Regulation or other consents, and DOMVS has not tested any services, equipment or facilities. Purchasers must satisfy themselves by inspection or otherwise. DOMVS is a member of The Property Ombudsman scheme and subscribes to The Property Ombudsman Code of Practice.

Property Reference: NDO250049

Arrange a Viewing

Viewing request form for sales properties.

"*" indicates required fields

This field is for validation purposes and should be left unchanged.
This field is hidden when viewing the form
Property address is dynamically added via the shortcode on the property details page.
This field is hidden when viewing the form
Property URL is dynamically added via the shortcode on the property details page.
This field is hidden when viewing the form
Branch ID is dynamically added via the shortcode on the property details page.
This field is hidden when viewing the form
Instruction type is dynamically added via the shortcode on the property details page.
Current Address*
Preferred Time of Viewing*
:
Properties of Interest

Our Privacy Policy and Notice describes how we use your data, who we might share it with and what rights you have.

This site is protected by reCAPTCHA and the Google Privacy Policy and Terms of Service apply.

Map

Property Floorplan

Floorplan for Lytchett Matravers, Poole, Dorset

Property EPC

Energy Performance Graph for Lytchett Matravers, Poole, Dorset

Arrange a Viewing

Viewing request form for sales properties.

"*" indicates required fields

This field is for validation purposes and should be left unchanged.
This field is hidden when viewing the form
Property address is dynamically added via the shortcode on the property details page.
This field is hidden when viewing the form
Property URL is dynamically added via the shortcode on the property details page.
This field is hidden when viewing the form
Branch ID is dynamically added via the shortcode on the property details page.
This field is hidden when viewing the form
Instruction type is dynamically added via the shortcode on the property details page.
Current Address*
Preferred Time of Viewing*
:
Properties of Interest

Our Privacy Policy and Notice describes how we use your data, who we might share it with and what rights you have.

This site is protected by reCAPTCHA and the Google Privacy Policy and Terms of Service apply.