5 BED Detached house For Sale

£650,000 Guide Price

Dorset

Elevated detached home in sought-after Milborne St. Andrew, offering over 2,200 sq ft of versatile living. Five bedrooms, three reception rooms, garden room, private rear garden with summer house, and garage - ideal for modern family life.

Contact Head of Sales, Blandford
Stuart Bramley

Property details

Inside

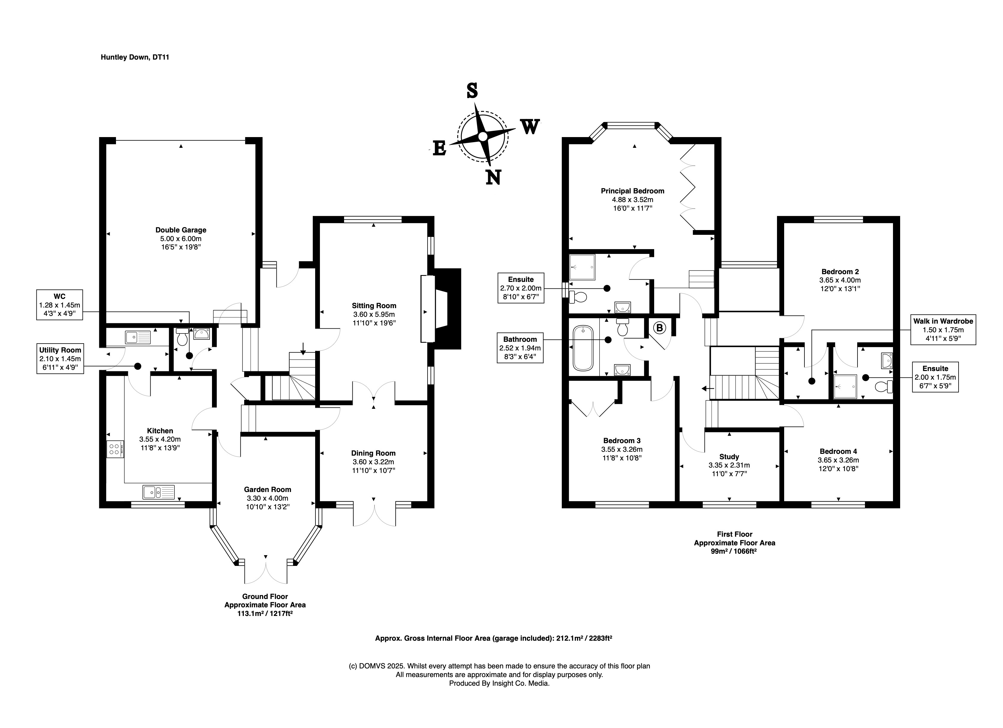
Occupying an elevated position within the well-regarded village of Milborne St. Andrew, this attractive detached house offers generous and well-balanced accommodation extending to over 2,200 sq ft including the double garage. Thoughtfully arranged over two floors, the property provides five bedrooms and three reception rooms, creating a flexible layout well suited to modern family life, entertaining and those requiring space to work from home.

The property is entered via a welcoming ENTRANCE HALL with staircase rising to the first floor and doors leading to the principal reception rooms. Steps lead down to an INNER HALLWAY, which provides access to the CLOAKROOM, the integral DOUBLE GARAGE, and useful under-stairs storage.

The SITTING ROOM is a particularly comfortable and well-proportioned space, centred around a brick fireplace with wood burning stove forming a natural focal point. Double doors connect through to the DINING ROOM, creating an excellent arrangement for both everyday living and more formal entertaining, while French doors from the dining room open directly onto the garden.

To the rear of the property, the GARDEN ROOM provides an additional reception space with double doors opening onto the garden and a pleasant outlook across the rear grounds. This versatile room works equally well as a family room, relaxed sitting area or informal entertaining space.

The KITCHEN is well arranged with a range of fitted wall and base units together with a double oven and gas hob, providing a practical and functional space at the heart of the home. A separate UTILITY ROOM offers further storage together with space and plumbing for appliances and a useful side door leading directly to the garden.

Upstairs, the FIRST FLOOR LANDING is arranged across two light and open areas which create a sense of space between the bedrooms and add to the overall feeling of scale within the house. The PRINCIPAL BEDROOM enjoys a bay window and benefits from built-in wardrobes together with its own EN-SUITE SHOWER ROOM.

Four further bedrooms are arranged across the floor, several of which also benefit from fitted wardrobes, making the layout particularly well suited to family living or visiting guests. BEDROOM TWO also benefits from its own EN-SUITE SHOWER ROOM, while the remaining bedrooms are served by a well-appointed FAMILY BATHROOM.

Overall, the property offers spacious and adaptable accommodation capable of meeting a wide range of modern living requirements.

Outside

The property is approached via a driveway providing off-road parking and leading to the DOUBLE GARAGE, which benefits from power, lighting and an electric up-and-over door.

To the front, the garden is attractively arranged with established planting and well-stocked borders which soften the approach and complement the property’s brick and flint elevations.

The rear garden enjoys a good degree of privacy and has been thoughtfully arranged for ease of maintenance. Immediately behind the house is a decked seating area providing an ideal space for outdoor dining and entertaining, while a raised paved terrace creates a further seating area with a pleasant outlook back towards the house.

The garden is enclosed by mature planting and fencing, creating a sheltered and private environment.

Location

Milborne St Andrew boasts one local store, a local pub renowned for its Sunday roasts, a village hall, a sports pavilion, a first school, a playgroup, bus routes and access to nearby rural walks. The village is ideally located within close proximity of the main route between the county town of Dorchester, with its mainline railway station to London Waterloo and Bristol, famous weekly market and reputable schools, and Blandford Forum with its boutique style shops, tea rooms and riverside walks.

Directions

Use what3words.com to navigate to the exact spot. Search using: inserting.crossings.island

Material Information

ROOM MEASUREMENTS: Please refer to floor plan.

SERVICES: Mains drainage, electricity and gas. Gas central heating.

LOCAL AUTHORITY: Dorset Council. Tax band F.

TENURE: Freehold.

LETTINGS: Should you be interested in acquiring a Buy-to-Let investment, and would appreciate advice regarding the current rental market, possible yields, legislation for landlords and how to make a property safe and compliant for tenants, then find out about our Investor Club Our expert lettings team will be pleased to provide you with additional, personalised support; just call on the branch telephone number to take the next step.

IMPORTANT NOTICE: DOMVS and its Clients give notice that: they have no authority to make or give any representations or warranties in relation to the property. These particulars do not form part of any offer or contract and must not be relied upon as statements or representations of fact. Any areas, measurements or distances are approximate. The text, photographs (including any AI photography) and plans are for guidance only and are not necessarily comprehensive. It should not be assumed that the property has all necessary Planning, Building Regulation or other consents, and DOMVS has not tested any services, equipment or facilities. Purchasers must satisfy themselves by inspection or otherwise. DOMVS is a member of The Property Ombudsman scheme and subscribes to The Property Ombudsman Code of Practice.

Property Reference: NDO260005

Arrange a Viewing

Viewing request form for sales properties.

"*" indicates required fields

This field is for validation purposes and should be left unchanged.
This field is hidden when viewing the form
Property address is dynamically added via the shortcode on the property details page.
This field is hidden when viewing the form
Property URL is dynamically added via the shortcode on the property details page.
This field is hidden when viewing the form
Branch ID is dynamically added via the shortcode on the property details page.
This field is hidden when viewing the form
Instruction type is dynamically added via the shortcode on the property details page.
Current Address*
Preferred Time of Viewing*
:
Properties of Interest

Our Privacy Policy and Notice describes how we use your data, who we might share it with and what rights you have.

This site is protected by reCAPTCHA and the Google Privacy Policy and Terms of Service apply.

Map

Property Floorplan

Floorplan for Milborne St Andrew, Dorset

Property EPC

Energy Performance Graph for Milborne St Andrew, Dorset

Broadband

Standard

17 Mbps Download Speed
1 Mbps Upload Speed

SuperFast

79 Mbps Download Speed
20 Mbps Upload Speed

UltraFast

952 Mbps Download Speed
116 Mbps Upload Speed

Mobile Coverage

Good
OK
OK
OK

Arrange a Viewing

Viewing request form for sales properties.

"*" indicates required fields

This field is for validation purposes and should be left unchanged.
This field is hidden when viewing the form
Property address is dynamically added via the shortcode on the property details page.
This field is hidden when viewing the form
Property URL is dynamically added via the shortcode on the property details page.
This field is hidden when viewing the form
Branch ID is dynamically added via the shortcode on the property details page.
This field is hidden when viewing the form
Instruction type is dynamically added via the shortcode on the property details page.
Current Address*
Preferred Time of Viewing*
:
Properties of Interest

Our Privacy Policy and Notice describes how we use your data, who we might share it with and what rights you have.

This site is protected by reCAPTCHA and the Google Privacy Policy and Terms of Service apply.