2 BED Detached house For Sale

£260,000 Offers over

Dorset

Owners say, 'It’s a home full of character and warmth, ready for someone to make it their own'.

Contact Sales Associate Director
Shireen Macdonald

Property details

Inside

Iris Cottage is a detached, part-thatched character home that offers comfortable and well-balanced accommodation, with a number of traditional features that lend charm and individuality.

The thatched entrance canopy opens into the SITTING ROOM, an inviting space where the front door is flanked by windows overlooking the gardens. This welcoming room is centred around a stone fireplace with timber mantel, brick and flagstone hearth with inset woodburning stove. Exposed ceiling beams add to the character, creating a space well suited for both everyday living and relaxing by the fire.

The KITCHEN/DINING ROOM is fitted with floor-mounted units and worksurfaces, with an inset Butler sink positioned beneath the window, providing plenty of natural light and a pleasant outlook. There is space for an oven (supplied by bottled gas), together with further space for a washing machine and fridge/freezer. The room is large enough to accommodate a dining table and chairs, making it a practical and sociable hub of the home. Further features include a useful walk-in larder and an under-stairs cupboard housing the oil-fired condensing boiler. A stable door opens into the SUN ROOM laid with attractive tiled flooring and providing access to a separate store cupboard. From here, a further door opens directly onto the paved patio and garden beyond.

Stairs rise to the first-floor landing where there is loft access, and a fitted cupboard with shelving. The PRINCIPAL BEDROOM has views over the across the garden and benefits from a fitted wardrobe with panelled doors.

BEDROOM TWO has two front-aspect windows, giving the room a particularly light and airy feel, with ample space for freestanding furniture.

Concluding the accommodation is the former bathroom, which has been thoughtfully adapted into a SHOWER ROOM, now arranged as a wet room with shower, wash hand basin, and W.C., providing a practical and modern addition.

PLEASE NOTE: The property requires some structural works and may therefore appeal to purchasers seeking a project.

Outside

Iris Cottage is approached through a timber gate, with a garden shed to the side and a pathway leading to the thatched entrance canopy and front door. The gardens are mainly laid to lawn and enjoy a desirable south-westerly aspect, offering a good degree of privacy and afternoon sun. A generous paved terrace abuts the rear of the house, creating an inviting space for outdoor dining and relaxation.

The garden has a natural informal feel, with areas of planting, a small pond, and an additional seating area. Steps rise to a further area of lawn, where a second garden shed provides useful storage. Altogether, the grounds offer a peaceful setting, well suited to both entertaining and quiet enjoyment.

Location

Iris Cottage is ideally positioned close to the heart of Maiden Newton, a thriving and well-connected Dorset village with a strong sense of community. Nestled in a verdant valley where the River Hooke meets the River Frome, the village enjoys easy access to both Dorchester, the county town just eight miles away, and Yeovil, approximately eleven miles to the north.

Residents benefit from an impressive range of local amenities, including a village store, post office, doctors’ surgery, primary school, veterinary practice, village hall, fuel station with shop, and a welcoming public house. The mainline railway station provides convenient links between Bristol Temple Meads and Weymouth. The surrounding Dorset countryside is renowned for its rolling hills, scenic footpaths, and bridleways, with the stunning Jurassic Coast, a UNESCO World Heritage Site, all within easy reach.

Directions

Use what3words.com to navigate to the exact spot. Search using: regular.petition.menswear

Material Information

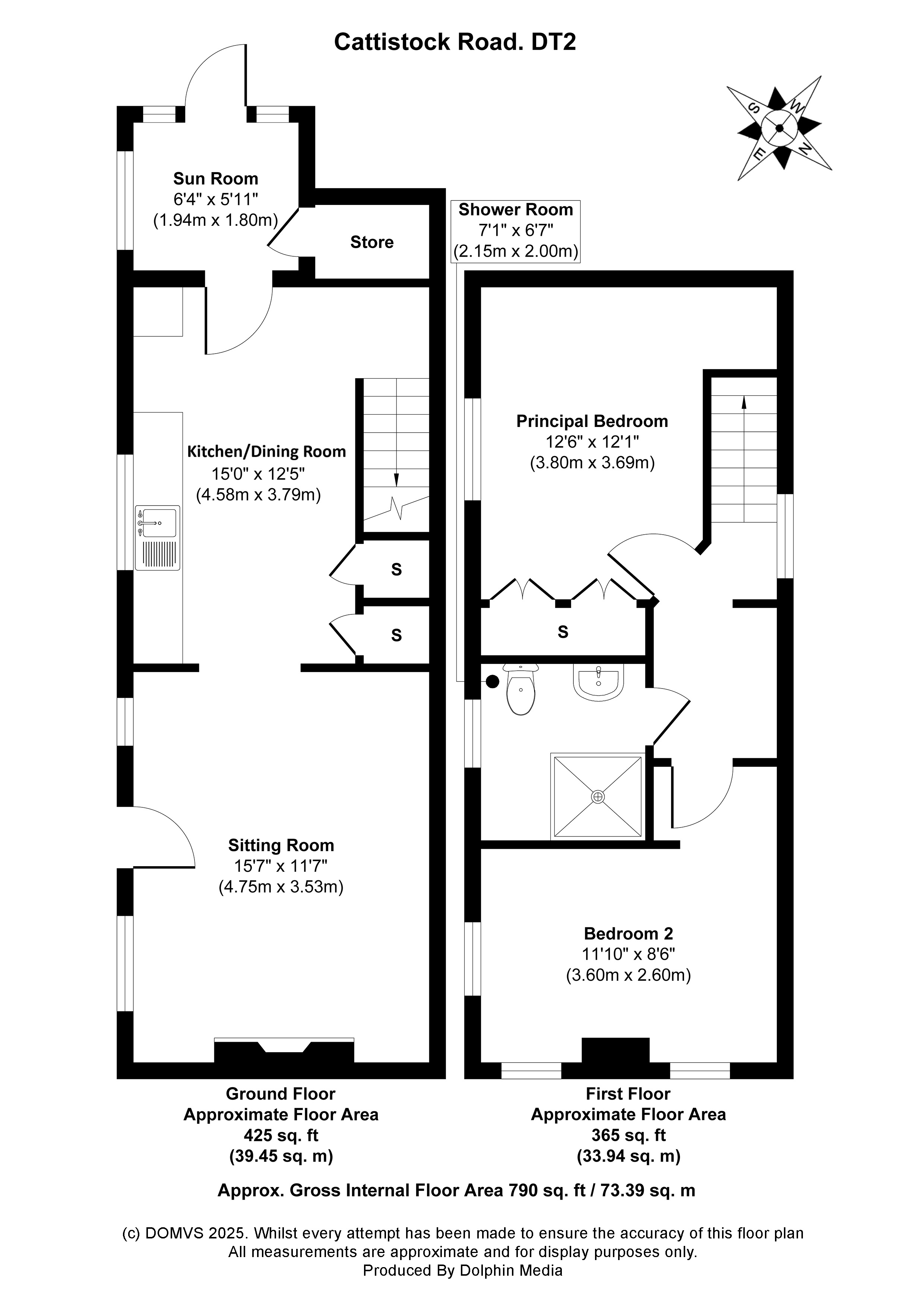
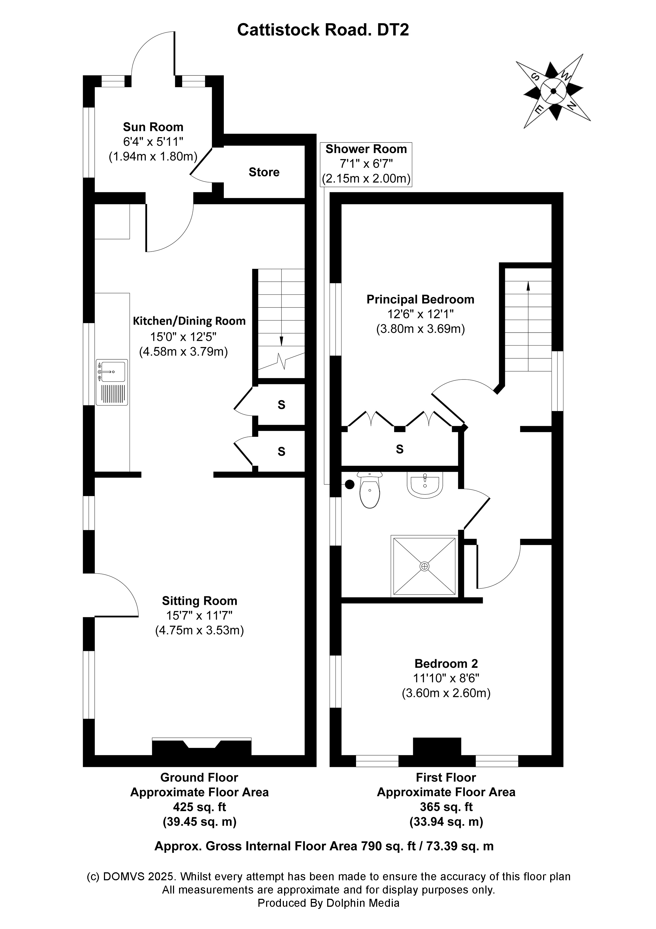
ROOM MEASUREMENTS: Please refer to floor plan.

SERVICES: Mains drainage and electricity; oil-fired central heating.

LOCAL AUTHORITY: Dorset Council. Tax band C.

BROADBAND: Standard download 19 Mbps, upload 1 Mbps. Superfast download 80 Mbps, upload 20 Mbps. Please note all available speeds quoted are 'up to'.

MOBILE PHONE COVERAGE: For further information please go to Ofcom website.

TENURE: Freehold.

LETTINGS: Should you be interested in acquiring a Buy-to-Let investment, and would appreciate advice regarding the current rental market, possible yields, legislation for landlords and how to make a property safe and compliant for tenants, then find out about our Investor Club Our expert lettings team will be pleased to provide you with additional, personalised support; just call on the branch telephone number to take the next step.

IMPORTANT NOTICE: DOMVS and its Clients give notice that: they have no authority to make or give any representations or warranties in relation to the property. These particulars do not form part of any offer or contract and must not be relied upon as statements or representations of fact. Any areas, measurements or distances are approximate. The text, photographs (including any AI photography) and plans are for guidance only and are not necessarily comprehensive. It should not be assumed that the property has all necessary Planning, Building Regulation or other consents, and DOMVS has not tested any services, equipment or facilities. Purchasers must satisfy themselves by inspection or otherwise. DOMVS is a member of The Property Ombudsman scheme and subscribes to The Property Ombudsman Code of Practice.

Property Reference: DOR250206

Arrange a Viewing

Viewing request form for sales properties.

"*" indicates required fields

This field is for validation purposes and should be left unchanged.
This field is hidden when viewing the form
Property address is dynamically added via the shortcode on the property details page.
This field is hidden when viewing the form
Property URL is dynamically added via the shortcode on the property details page.
This field is hidden when viewing the form
Branch ID is dynamically added via the shortcode on the property details page.
This field is hidden when viewing the form
Instruction type is dynamically added via the shortcode on the property details page.
Current Address*
Preferred Time of Viewing*
:
Properties of Interest

Our Privacy Policy and Notice describes how we use your data, who we might share it with and what rights you have.

This site is protected by reCAPTCHA and the Google Privacy Policy and Terms of Service apply.

Map

Property Floorplan

Floorplan for Maiden Newton, Dorset

Property EPC

Energy Performance Graph for Maiden Newton, Dorset

Arrange a Viewing

Viewing request form for sales properties.

"*" indicates required fields

This field is for validation purposes and should be left unchanged.
This field is hidden when viewing the form
Property address is dynamically added via the shortcode on the property details page.
This field is hidden when viewing the form
Property URL is dynamically added via the shortcode on the property details page.
This field is hidden when viewing the form
Branch ID is dynamically added via the shortcode on the property details page.
This field is hidden when viewing the form
Instruction type is dynamically added via the shortcode on the property details page.
Current Address*
Preferred Time of Viewing*
:
Properties of Interest

Our Privacy Policy and Notice describes how we use your data, who we might share it with and what rights you have.

This site is protected by reCAPTCHA and the Google Privacy Policy and Terms of Service apply.