Owners say, 'The breathtaking views, the peaceful setting, and the effortless connection to Lyme’s charming town and coastline — this home captures the very essence of coastal living.'
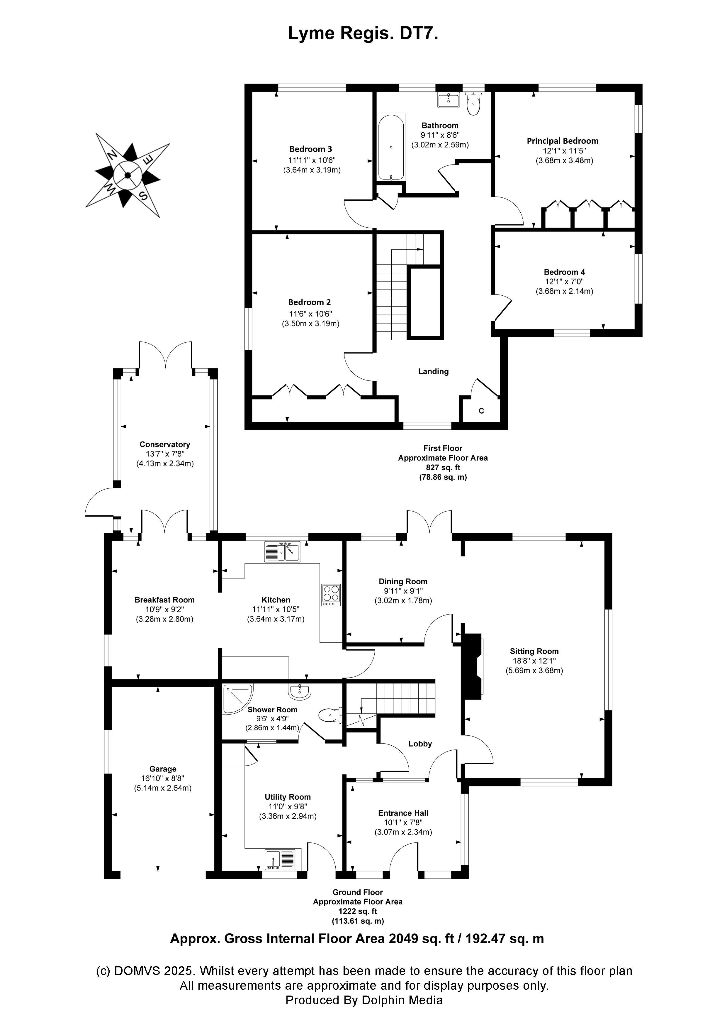
The home welcomes you via a sizeable, tiled ENTRANCE HALL, naturally bright thanks to its dual-aspect windows, offering the perfect space for sandy shoes and muddy wellie boots. This leads into a light-filled HALLWAY with an attractive timber and wrought iron staircase rising to the first floor.
The triple-aspect SITTING ROOM is a delightful space, bathed in natural light and enjoying far-reaching garden and coastal views. A contemporary log burner set on a stone hearth adds warmth and character, while engineered oak flooring flows seamlessly through to the adjoining DINING ROOM, where French doors open onto the patio and rear garden — perfect for entertaining or quiet relaxation.
The well-appointed KITCHEN is fitted with an array of modern cream units complemented by oak-effect worktops and tiled surrounds. Integrated appliances complete this fantastic space making it a chef’s dream. Adjoining the kitchen, a BREAKFAST ROOM and CONSERVATORY offer versatile spaces for informal dining or simply soaking up the coastal light.
The UTILITY ROOM is both practical and well designed, providing plentiful cupboard and storage space, room for laundry appliances, and additional space for a fridge/freezer. A modern SHOWER ROOM lies just beyond fitted with a heated towel rail, W.C., wash hand basin, and is part tiled.
Upstairs, once you have taken in the view from the galleried LANDING, you will then find the PRINCIPAL BEDROOM which benefits from fitted wardrobes and dual aspect windows taking in not just the wonderful coastal view but the ever-changing countryside view too. BEDROOMS THREE and FOUR make the most of the spectacular sea and coastal vistas, while BEDROOM TWO provides flexibility as a study or a great guest room. The family bathroom features a classic white suite with two rear aspect windows, heated towel rail and is part tiled.
To the front a generous gated tarmac driveway offers parking for multiple vehicles and leads to the garage. The garage has an electric door with pedestrian door and window to the side. There is an EV charging point at the front of the house along with solar panels. Mature hedging and planting provide privacy to the front, while side access opens to a beautifully secluded rear garden — mainly laid to lawn and bordered by a variety of shrubs, fruit trees, and flowering plants. Two raised terraces provide idyllic vantage points to enjoy the panoramic sea views. This perfect al fresco area is an ideal spot for entertaining. With a sizeable potting bed and currently a hot tub completing this wonderful outdoor space, it will be hard to get family and guests to leave.
Lyme Regis is a popular and picturesque coastal town noted for its attractive period buildings, centuries old Cobb and iconic harbour. There are facilities including many independent shops, supermarkets and a number of restaurants and hotels, along with various museums. There are also many recreational and sporting facilities which include a sailing club, bowls club, sea fishing and also a well-respected golf course which sits on the top of the cliff. The busy market town of Axminster to the north-west also has an excellent variety of shops and a mainline rail link to London Waterloo. The nearby A35 gives access to Exeter, which has an international airport, and Taunton with M5 motorway connections.
Use what3words.com to navigate to the exact spot. Search using: universally.with.zoos
ROOM MEASUREMENTS: Please refer to floor plan.
SERVICES: Mains drainage, electricity & gas. Gas central heating.
LOCAL AUTHORITY: Dorset Council. Tax band G.
BROADBAND: Standard download 18 Mbps, upload 1 Mbps. Superfast download 80 Mbps, upload 20 Mbps. Ultrafast download 1000 Mbps, upload 1000 Mbps. Please note all available speeds quoted are 'up to'.
MOBILE PHONE COVERAGE: For further information please go to Ofcom website.
TENURE: Freehold.
LETTINGS: Should you be interested in acquiring a Buy-to-Let investment, and would appreciate advice regarding the current rental market, possible yields, legislation for landlords and how to make a property safe and compliant for tenants, then find out about our Investor Club from our expert, Alexandra Holland. Alexandra will be pleased to provide you with additional, personalised support; just call her on the branch telephone number to take the next step.
IMPORTANT NOTICE: DOMVS and its Clients give notice that: they have no authority to make or give any representations or warranties in relation to the property. These particulars do not form part of any offer or contract and must not be relied upon as statements or representations of fact. Any areas, measurements or distances are approximate. The text, photographs (including any AI photography) and plans are for guidance only and are not necessarily comprehensive. It should not be assumed that the property has all necessary Planning, Building Regulation or other consents, and DOMVS has not tested any services, equipment or facilities. Purchasers must satisfy themselves by inspection or otherwise. DOMVS is a member of The Property Ombudsman scheme and subscribes to The Property Ombudsman Code of Practice.
Property Reference: WDO250024
Viewing request form for sales properties.
"*" indicates required fields
 
                                     
                                    Viewing request form for sales properties.
"*" indicates required fields