3 BED Detached house Under Offer

£700,000

Bridport

In approx. a third of an acre, this versatile home (with planning permission) comes with breathtaking views and beautiful, mature gardens. This is a rare opportunity to secure a truly special home in this highly sought-after coastal location.

Contact Sales Head of Sales, West Dorset
Benjamin Dobson

Property details

Inside

The property is approached via a welcoming porch, perfectly suited for coats and boots before stepping into the main hallway. Here, warm wooden flooring flows gracefully underfoot, complemented by a staircase rising with soft carpeting and a discreet under-stairs cupboard,providing invaluable storage.

The heart of the home lies in the superb open-plan SITTING AND DINING ROOM, where dual-aspect windows invite natural light to pour in throughout the day. At one end, a wood-burning stove creates a cosy focal point, while at the other, generous space is given over to dining. A striking picture window frames a captivating view of the sea—so enchanting it is hard to look away.
Seamlessly adjoining, the KITCHEN/BREAKFAST ROOM is thoughtfully positioned to enjoy the same sweeping coastal vistas. Wooden worktops, a Belfast sink, pantry, and space for a range cooker and dishwasher bring charm and practicality in equal measure, all set upon slate-tiled flooring that reinforces the home’s timeless, country-inspired feel.

Formerly the garage, a clever conversion has created a versatile STUDIO with a utility area to one side and a delightful conservatory to the other. Sliding doors open onto a sun-drenched terrace with pergola above—an idyllic spot for morning coffee or evening drinks. A Velux™ skylight, windows to the side, and an additional door to the front complete this flexible space. Notably, planning permission exists to add a fourth bedroom above, should one wish.

At the opposite end of the ground floor lies BEDROOM TWO, a well-proportioned double room enjoying sea views and direct ‘Jack and Jill’ access to the family bathroom, making it an ideal guest retreat. The BATHROOM is fitted with a bath and shower over, pedestal basin, W.C., heated towel rail, and part-tiled walls.

Ascending to the first floor, where a generous double storage cupboard adds to the home’s practical appeal.

The PRINCIPAL SUITE is elegantly appointed, complete with built-in wardrobe, ENSUITE bathroom, and breathtaking views stretching across Portland, Stonebarrow, and Golden Cap. The en-suite features a vanity sink, bath with shower over, W.C., heated towel rail, porcelain-tiled flooring, and a window overlooking the mature front gardens.

BEDROOM THREE, currently arranged as a study, is another generous double room with dual-aspect windows, elevated views of both countryside and coast, a built-in wardrobe, wooden flooring, and access to eaves storage.

Outside

The property itself is set centrally within grounds of approximately one-third of an acre. Approached via a five-bar gate, the driveway provides ample parking. The gardens are a delight throughout the seasons.

At the front, a wooded glade of Oak, Beech, Bay, Sumac, Gingko Biloba, Liquidambar, Clerodendron, Myrtle, Rowan, and winter-flowering Honeysuckle is interwoven with a private path revealing tantalising glimpses of the sea. To the rear, the south-facing garden is a haven of privacy and year-round interest, planted with an array of trees and shrubs. A broad lawn provides the perfect setting for family games and outdoor enjoyment, while a wooden shed offers practical storage for garden tools and equipment. A sheltered terrace, cloaked in Wisteria and flowing seamlessly from the principal reception room, creates the perfect stage for summer dining. These gardens are designed for colour, fragrance, and pure enjoyment at every turn.

Location

Charmouth is a highly sought-after coastal village within Dorset National Landscape (formerly known as an Area of Outstanding Natural Beauty). Its beach, famous for its fossils, is designated a UNESCO World Heritage Site and attracts visitors from all over the world. The village itself is well served with amenities including a convenience store, bakery, hairdresser, doctor’s surgery, library, and two welcoming pubs, alongside tennis courts and a recreation ground.

Lyme Regis is just 3 miles to the west, offering sailing, mackerel fishing, theatre and hosting many festivals throughout the year.

Axminster is under 6 miles away with a mainline railway station to London Waterloo.

The larger city of Exeter lies some 32 miles away, with an international airport and a range of facilities and high street shopping.

Directions

Use what3words.com to navigate to the exact spot. Search using: leans.neck.extent

Material Information

ROOM MEASUREMENTS: Please refer to floor plan.

SERVICES: Mains drainage, electricity & gas. Gas central heating.

LOCAL AUTHORITY: Dorset Council. Tax band E.

BROADBAND: Standard download 16 Mbps, upload 1 Mbps. Superfast download 76 Mbps, upload 18 Mbps. Please note all available speeds quoted are 'up to'.

MOBILE PHONE COVERAGE: For further information please go to Ofcom website.

TENURE: Freehold.

LETTINGS: Should you be interested in acquiring a Buy-to-Let investment, and would appreciate advice regarding the current rental market, possible yields, legislation for landlords and how to make a property safe and compliant for tenants, then find out about our Investor Club from our expert, Alexandra Holland. Alexandra will be pleased to provide you with additional, personalised support; just call her on the branch telephone number to take the next step.

IMPORTANT NOTICE: DOMVS and its Clients give notice that: they have no authority to make or give any representations or warranties in relation to the property. These particulars do not form part of any offer or contract and must not be relied upon as statements or representations of fact. Any areas, measurements or distances are approximate. The text, photographs (including any AI photography) and plans are for guidance only and are not necessarily comprehensive. It should not be assumed that the property has all necessary Planning, Building Regulation or other consents, and DOMVS has not tested any services, equipment or facilities. Purchasers must satisfy themselves by inspection or otherwise. DOMVS is a member of The Property Ombudsman scheme and subscribes to The Property Ombudsman Code of Practice.

Property Reference: WDO250073

Arrange a Viewing

Viewing request form for sales properties.

"*" indicates required fields

This field is for validation purposes and should be left unchanged.
This field is hidden when viewing the form
Property address is dynamically added via the shortcode on the property details page.
This field is hidden when viewing the form
Property URL is dynamically added via the shortcode on the property details page.
This field is hidden when viewing the form
Branch ID is dynamically added via the shortcode on the property details page.
This field is hidden when viewing the form
Instruction type is dynamically added via the shortcode on the property details page.
Current Address*
Preferred Time of Viewing*
:
Properties of Interest

Our Privacy Policy and Notice describes how we use your data, who we might share it with and what rights you have.

This site is protected by reCAPTCHA and the Google Privacy Policy and Terms of Service apply.

Map

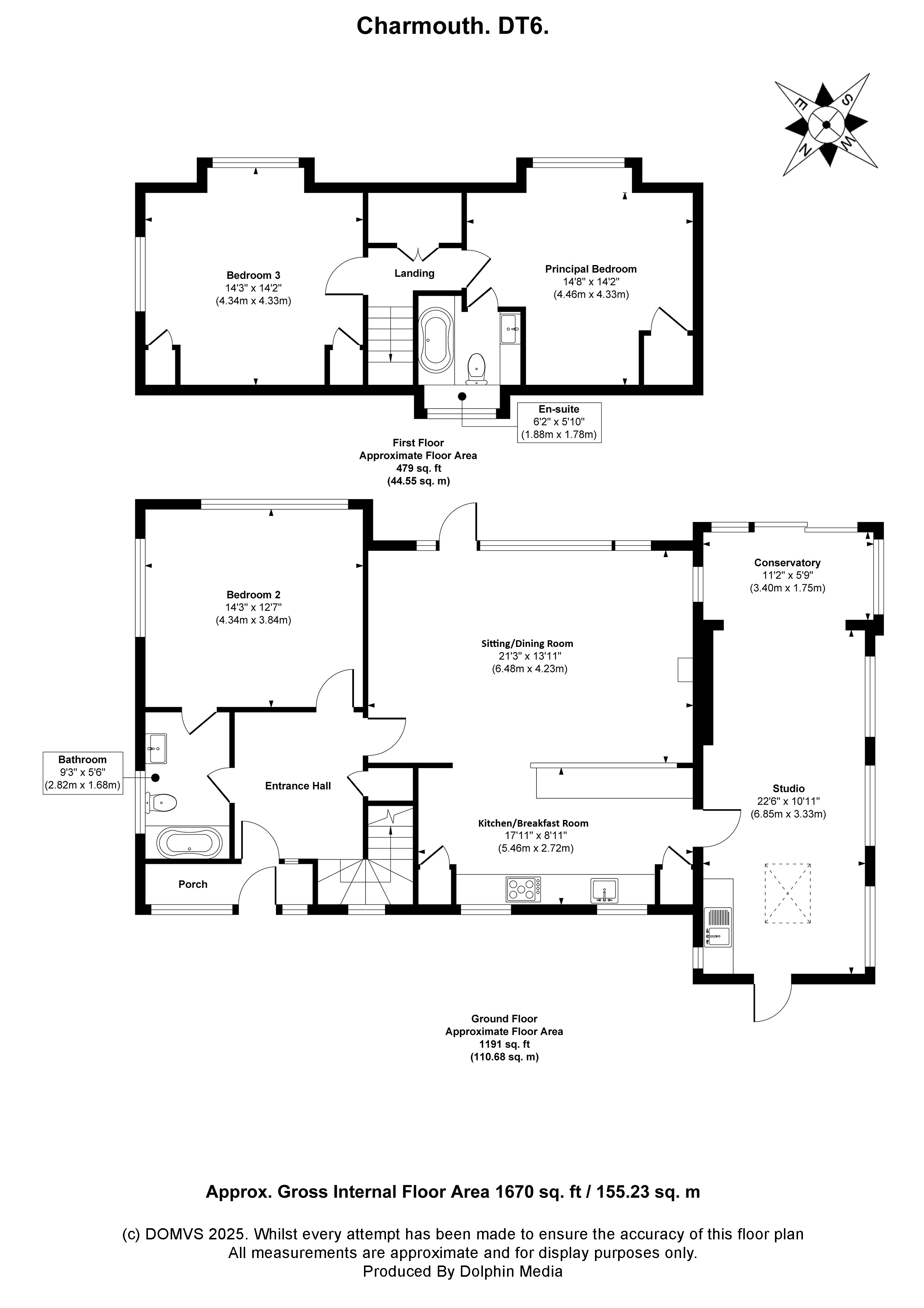
Property Floorplan

Floorplan for Charmouth, Bridport

Property EPC

Energy Performance Graph for Charmouth, Bridport

Arrange a Viewing

Viewing request form for sales properties.

"*" indicates required fields

This field is for validation purposes and should be left unchanged.
This field is hidden when viewing the form
Property address is dynamically added via the shortcode on the property details page.
This field is hidden when viewing the form
Property URL is dynamically added via the shortcode on the property details page.
This field is hidden when viewing the form
Branch ID is dynamically added via the shortcode on the property details page.
This field is hidden when viewing the form
Instruction type is dynamically added via the shortcode on the property details page.
Current Address*
Preferred Time of Viewing*
:
Properties of Interest

Our Privacy Policy and Notice describes how we use your data, who we might share it with and what rights you have.

This site is protected by reCAPTCHA and the Google Privacy Policy and Terms of Service apply.