2 BED Terraced House Let

£1,100PCM

Dorchester

Spacious TWO Bedroom Cottage located in the heart of the sought after village of Cerne Abbas with delightful COURTYARD to the rear.

Property details

Spacious TWO Bedroom Cottage located in the heart of the sought after village of Cerne Abbas with delightful COURTYARD to the rear.

Inside

Situated in the very heart of this picturesque village lies the Old Gaol Cottage, formerly as the name rightly suggests the Cerne Abbas jail and police station.

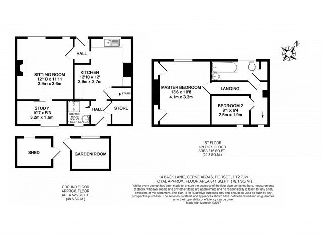
The entrance to the property is shared with number 8 Long Street. The distinctive front door opens, in true cottage style into the SITTING ROOM. Plentiful natural light floods in courtesy of the stone mullion window an ideal spot to partake in watching village life. This charming reception room is centred around what was the chimney and now comprising a glazed display cabinet and cupboard with bifold doors which discreetly houses a tv. A thoroughfare leads to the INNER HALL with pleasing tiled flooring, and able to accommodate some hall furniture. From here there is a door to the courtyard garden as well stairs rising to the first floor.

The DINING ROOM readily accommodates a sizeable table and chairs for entertaining. An additional window provides natural light and on a practical note there is a generous, ever useful storage cupboard. Discreetly positioned between the dining room and kitchen is the CLOAK ROOM with wash hand basin, WC. and one of the high-level former gaol windows. The KITCHEN has an array of food preparation work surfaces and form a peninsular with small breakfast /coffee bar. There are plentiful storage options with cupboards, drawers, corner carousel and glazed display cabinet; in addition, there is appliance space and associated plumbing for washing machine, tumble drier and fridge. Pride of place is given to the electric range with twin ovens and grill. The kitchen is both light and airy with the window overlooking the courtyard garden.

Upstairs one is greeted with a spacious landing with plentiful natural light, on a practical note located here is a cupboard housing the hot water cylinder and opposite a large storage cupboard with light. The PRINCIPAL BEDROOM is a comfortable sized double bedroom overlooking Long Street. A feature Victorian fireplace upon a slate heath is flanked either side with storage opportunities. The GUEST BEDROOM is notably generously proportioned and lies to the rear of the cottage with window overlooking the village scape and the undulating countryside beyond. Concluding the charming accommodation is the BATHROOM with panelled bath with central mixer tap, bespoke vanity unit with wash hand basin, WC. heated towel rail and shower cubicle with Bristan™ electric shower.

The delightful courtyard garden is approached via the inner hall, outside to a covered canopy area. The courtyard is fully enclosed: part walled, and part fenced. The paved path leads to a paved patio area and provides a lovely seating area for outside entertaining. There is a small timber shed to store garden equipment and to tend the borders which are well stocked with Periwinkles, Bleeding Heart, ferns, and a variety of ivy including Kenilworth ivy, providing both interest and colour.

Security Deposit: £1384.00
Holding Deposit: £276.92

The property is serviced by Night Storage Heating, Main Water and Sewerage. Partial Double Glazed and Partial Secondary Glazing.
EPC Excempt.
Council Tax Band: TBC

Directions

Use what3words.com to navigate to the exact spot. Search using: tailed.page.zoos

Property Reference: LET250050

Arrange a Viewing

Viewing request form for sales properties.

"*" indicates required fields

This field is for validation purposes and should be left unchanged.
This field is hidden when viewing the form
Property address is dynamically added via the shortcode on the property details page.
This field is hidden when viewing the form
Property URL is dynamically added via the shortcode on the property details page.
This field is hidden when viewing the form
Branch ID is dynamically added via the shortcode on the property details page.
This field is hidden when viewing the form
Instruction type is dynamically added via the shortcode on the property details page.
Current Address*
Preferred Time of Viewing*
:
Properties of Interest

Our Privacy Policy and Notice describes how we use your data, who we might share it with and what rights you have.

This site is protected by reCAPTCHA and the Google Privacy Policy and Terms of Service apply.

Map

Property Floorplan

Floorplan for Cerne Abbas, Dorchester

Broadband

Standard

17 Mbps Download Speed
1 Mbps Upload Speed

SuperFast

80 Mbps Download Speed
20 Mbps Upload Speed

UltraFast

-1 Mbps Download Speed
-1 Mbps Upload Speed

Mobile Coverage

Good
Good
Good
Good

Arrange a Viewing

Viewing request form for sales properties.

"*" indicates required fields

This field is for validation purposes and should be left unchanged.
This field is hidden when viewing the form
Property address is dynamically added via the shortcode on the property details page.
This field is hidden when viewing the form
Property URL is dynamically added via the shortcode on the property details page.
This field is hidden when viewing the form
Branch ID is dynamically added via the shortcode on the property details page.
This field is hidden when viewing the form
Instruction type is dynamically added via the shortcode on the property details page.
Current Address*
Preferred Time of Viewing*
:
Properties of Interest

Our Privacy Policy and Notice describes how we use your data, who we might share it with and what rights you have.

This site is protected by reCAPTCHA and the Google Privacy Policy and Terms of Service apply.