3 BED Detached house For Sale

£750,000

Weymouth

STUNNING VIEWS. Owners say, 'What first drew us here were the views; every window looks over the surrounding countryside and sea beyond. The gardens and paddock have given us space to enjoy the outdoors, and the terrace has been our favourite spot for family meals and evenings with friends.'

Contact Sales Director
Polly Greenway

Property details

Inside

Step through the arched front doorway into a welcoming lobby with CLOAKROOM before being drawn into the heart of the home. The SITTING ROOM is a wonderfully light and inviting space, with dual-aspect windows from which you can see the sea and surrounding countryside. A central LPG fireplace creates a cosy focal point for winter evenings, while French doors open directly onto the sun terrace, encouraging an easy blend of indoor and outdoor living. It is a room that feels just as suited to family gatherings as it does to quiet evenings curled by the fire.

Beyond, an inner hallway with archways leads through to the dining room and kitchen. The DINING ROOM, perfectly placed for both everyday dining and entertaining, connects seamlessly with the kitchen, ensuring a natural flow when hosting. The KITCHEN itself has a traditional feel and is fitted with a range of wall and floor cupboards, providing both storage and workspace. A double electric oven and five-ring halogen hob, together with plumbing for both a dish-washer and washing machine ensure it's well-equipped and there is also a useful pantry. The Worcester™oil-fired boiler is also located here. A side door offers direct access outside.

Upstairs, the home continues to make the most of its elevated setting. There are THREE DOUBLE BEDROOMS, each one benefits from fitted wardrobes. The PRINCIPAL BEDROOM has the advantage of its own ENSUITE SHOWER ROOM room, while all three rooms capture far-reaching views towards the sea across open field. The FAMILY BATHROOM is finished with a modern white suite, including a panelled bath and electric shower.

Every room draws the eye outward to the landscape beyond. It is a home where the inside never feels far from the outside, and where every room has a view worth pausing for!

Outside

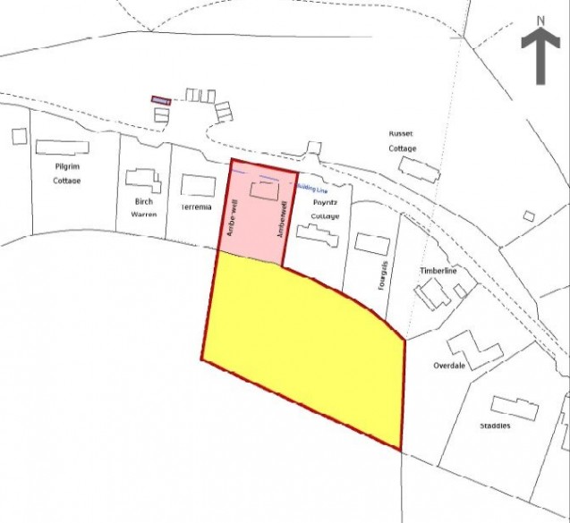
The approach to the property is via a paved area with steps leading down through terraced gardens to the front entrance. To the side is a useful workshop and store, ideal for hobbies or additional storage. At the rear, a wide sun terrace extends the full width of the house, creating an exceptional space for dining or simply soaking up the open views across the gardens, paddock, and towards Weymouth Bay. The gardens themselves are set over two tiers of lawn interspersed with trees and shrubs, with a gate opening into a paddock of just under an acre. At the entrance of the property is hardstanding for one vehicle. On the other side of the road, a very short walk up Plaisters Lane is a DETACHED DOUBLE GARAGE with hardstanding in front.

Location

Enjoying the most extraordinary views in the most peaceful of settings. Located within Sutton Poyntz village, one of Dorset’s prettiest villages with a picturesque duck pond. A designated Conservation Area, sitting within an `Area of Outstanding Natural Beauty` The famous Springhead public house is a short walk away. Footpaths lead to the famous White Horse Hill or the South Dorset Ridgeway to enjoy magnificent views across Weymouth Bay over to the Isle of Portland. Nearby is the Preston area of Weymouth, well served with a wide range of amenities, including doctor`s surgery, hairdressers, and general stores. A short drive away is Weymouth seafront and harbour, famous for its award winning beaches and eclectic mix of restaurants, cafes, Art Galleries. The county town of Dorchester is about 4 miles away in the opposite direction, and offers a comprehensive range of shops and cultural facilities. If you are looking to travel further afield main line rail links run from Weymouth to Dorchester, Bristol, and London.

Directions

Use what3words.com to navigate to the exact spot. Search using: curving.champions.dusted

Material Information

ROOM MEASUREMENTS: Please refer to floor plan.

SERVICES: Mains electricity; septic tank; oil-fired central heating.

LOCAL AUTHORITY: Dorset Council. Tax band E.

BROADBAND: Standard download 7 Mbps, upload 0.8 Mbps. Superfast download 34 Mbps, upload 7 Mbps. Please note all available speeds quoted are 'up to'.

MOBILE PHONE COVERAGE: For further information please go to Ofcom website.

TENURE: Freehold.

LETTINGS: Should you be interested in acquiring a Buy-to-Let investment, and would appreciate advice regarding the current rental market, possible yields, legislation for landlords and how to make a property safe and compliant for tenants, then find out about our Investor Club from our expert, Alexandra Holland. Alexandra will be pleased to provide you with additional, personalised support; just call her on the branch telephone number to take the next step.

IMPORTANT NOTICE: DOMVS and its Clients give notice that: they have no authority to make or give any representations or warranties in relation to the property. These particulars do not form part of any offer or contract and must not be relied upon as statements or representations of fact. Any areas, measurements or distances are approximate. The text, photographs (including any AI photography) and plans are for guidance only and are not necessarily comprehensive. It should not be assumed that the property has all necessary Planning, Building Regulation or other consents, and DOMVS has not tested any services, equipment or facilities. Purchasers must satisfy themselves by inspection or otherwise. DOMVS is a member of The Property Ombudsman scheme and subscribes to The Property Ombudsman Code of Practice.

Property Reference: PRE250149

Arrange a Viewing

Viewing request form for sales properties.

"*" indicates required fields

This field is for validation purposes and should be left unchanged.
This field is hidden when viewing the form
Property address is dynamically added via the shortcode on the property details page.
This field is hidden when viewing the form
Property URL is dynamically added via the shortcode on the property details page.
This field is hidden when viewing the form
Branch ID is dynamically added via the shortcode on the property details page.
This field is hidden when viewing the form
Instruction type is dynamically added via the shortcode on the property details page.
Current Address*
Preferred Time of Viewing*
:
Properties of Interest

Our Privacy Policy and Notice describes how we use your data, who we might share it with and what rights you have.

This site is protected by reCAPTCHA and the Google Privacy Policy and Terms of Service apply.

Map

Property Video

Property Floorplan

Floorplan for Sutton Poyntz, Weymouth, Dorset

Property EPC

Energy Performance Graph for Sutton Poyntz, Weymouth, Dorset

Arrange a Viewing

Viewing request form for sales properties.

"*" indicates required fields

This field is for validation purposes and should be left unchanged.
This field is hidden when viewing the form
Property address is dynamically added via the shortcode on the property details page.
This field is hidden when viewing the form
Property URL is dynamically added via the shortcode on the property details page.
This field is hidden when viewing the form
Branch ID is dynamically added via the shortcode on the property details page.
This field is hidden when viewing the form
Instruction type is dynamically added via the shortcode on the property details page.
Current Address*
Preferred Time of Viewing*
:
Properties of Interest

Our Privacy Policy and Notice describes how we use your data, who we might share it with and what rights you have.

This site is protected by reCAPTCHA and the Google Privacy Policy and Terms of Service apply.