2 BED Terraced House For Sale

£425,000 Guide Price

Dorset

Owners say, "We've loved being part of the village community and having the beautiful surrounding countryside on our doorstep".

Contact Sales Senior Associate Director
Greg Carter

Property details

Inside

This beautiful 17th Century Grade II Listed cottage, oozing with charm and character, is solidly built of brick and stone and is sitting, ready and waiting, for a new owner to make it their home.

Stepping into the HALL from the pretty frontage there is handy space for coats and boots. As you open the inner door to the SITTING ROOM, your eyes are drawn to the fabulous inglenook fireplace. The original bread oven is still in situ, reminding you of times gone by. This really is a lovely large and comfortable space, tempting you to spend cosy nights in front of the fire. There is a very useful DINING AREA just to the side of the Sitting Room, which has space for a large family dining table. From here, step into the KITCHEN, which is light and bright and has glorious views of the garden from the window and a door out to the rear garden too. There is plenty of worktop space, ample storage cupboards, and new integrated appliances - washing machine, dishwasher and fridge/freezer.

As is often the way in a Dorset cottage, the BATHROOM is just off a small hall from the kitchen. It is a calm retreat, with natural light and a delightful claw foot bath, imagine soaking away a long hard day!

From a door in the Sitting Room, the stairs take you up to two DOUBLE BEDROOMS. The first is a truly generous Double Bedroom, with a very pretty village outlook and lots of character. There are plenty of storage cupboards too. The second Double Bedroom has a modern En-suite shower room and overlooks the garden and fields to the rear.

Outside

From the kitchen door, the REAR GARDEN opens out to a large Patio with steps up to a lawn and then, on through an arbour, to a second paved area, perfect for entertaining with friends and family, or long relaxing days listening to the sounds of nature. Throughout the garden, it feels like there are separate rooms, with sections of privacy for seating, a pergola for sunnier times, somewhere to have your own BBQ or why not build your own pizza oven?

Towards the rear of the garden and behind fencing, is a dedicated area for a kitchen garden, complete with greenhouse. From the rear of the garden, there are open views to the countryside beyond.

Through a five bar gate there is a parking space and the GARAGE is in a block of three to the side of the cottage.

The cottage has agreed vehicular access to the garage down a private drive. There is also pedestrian access to the rear garden from here.

Location

Winfrith Newburgh is a very popular village lying close to Lulworth Cove, a natural horseshoe shaped harbour forming part of the Jurassic Coast World Heritage Site.

Set in the heart of the Purbecks, its unique beauty is reflected in its status as a designated area of Outstanding Natural Beauty. The village itself enjoys many amenities including an award-winning village shop and Post Office, public house, church, pre-school and primary school, and an active village hall.

Directions

Use what3words.com to navigate to the exact spot. Search using: Umbrellas.belts.became

Material Information

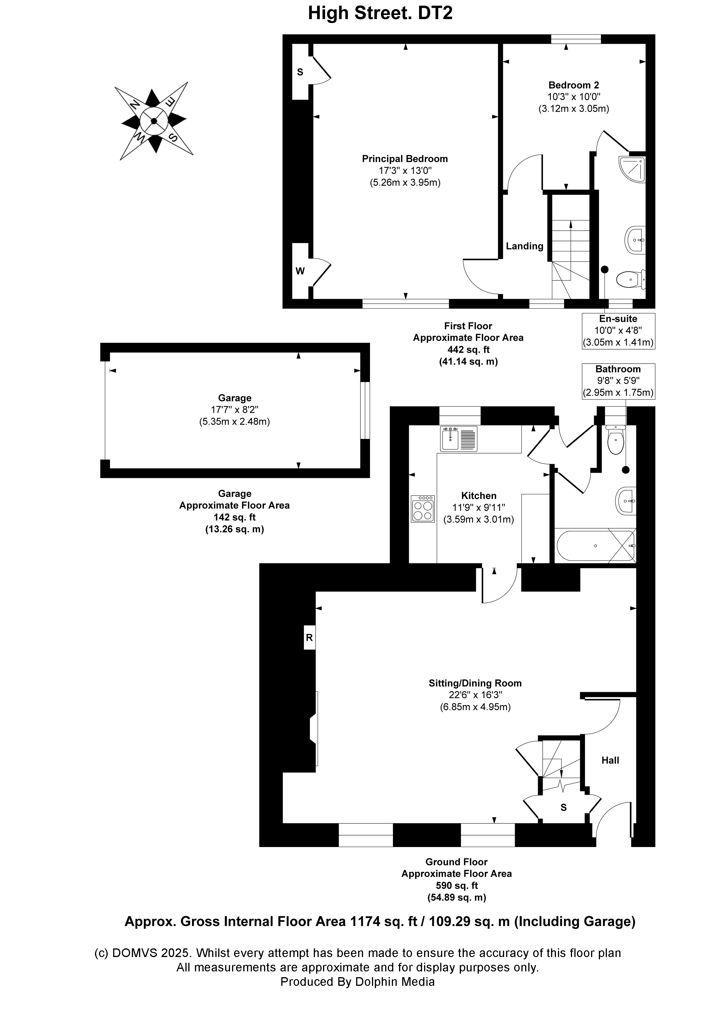
ROOM MEASUREMENTS: Please refer to floor plan.

SERVICES: Mains drainage, electricity & gas. Gas central heating.

LOCAL AUTHORITY: Dorset Council. Tax band D.

BROADBAND: Standard download 5 Mbps, upload 0.6 Mbps. Superfast download 80 Mbps, upload 20 Mbps. Ultrafast download 1000 Mbps, upload 1000 Mbps. Please note all available speeds quoted are 'up to'.

MOBILE PHONE COVERAGE: Limited. For further information please go to Ofcom website.

TENURE: Freehold.

LETTINGS: Should you be interested in acquiring a Buy-to-Let investment, and would appreciate advice regarding the current rental market, possible yields, legislation for landlords and how to make a property safe and compliant for tenants, then find out about our Investor Club Our expert lettings team will be pleased to provide you with additional, personalised support; just call on the branch telephone number to take the next step.

IMPORTANT NOTICE: DOMVS and its Clients give notice that: they have no authority to make or give any representations or warranties in relation to the property. These particulars do not form part of any offer or contract and must not be relied upon as statements or representations of fact. Any areas, measurements or distances are approximate. The text, photographs (including any AI photography) and plans are for guidance only and are not necessarily comprehensive. It should not be assumed that the property has all necessary Planning, Building Regulation or other consents, and DOMVS has not tested any services, equipment or facilities. Purchasers must satisfy themselves by inspection or otherwise. DOMVS is a member of The Property Ombudsman scheme and subscribes to The Property Ombudsman Code of Practice.

Property Reference: WAM250046

Arrange a Viewing

Viewing request form for sales properties.

"*" indicates required fields

This field is for validation purposes and should be left unchanged.
This field is hidden when viewing the form
Property address is dynamically added via the shortcode on the property details page.
This field is hidden when viewing the form
Property URL is dynamically added via the shortcode on the property details page.
This field is hidden when viewing the form
Branch ID is dynamically added via the shortcode on the property details page.
This field is hidden when viewing the form
Instruction type is dynamically added via the shortcode on the property details page.
Current Address*
Preferred Time of Viewing*
:
Properties of Interest

Our Privacy Policy and Notice describes how we use your data, who we might share it with and what rights you have.

This site is protected by reCAPTCHA and the Google Privacy Policy and Terms of Service apply.

Map

Property Floorplan

Floorplan for Winfrith Newburgh, Dorset

Property EPC

Energy Performance Graph for Winfrith Newburgh, Dorset

Arrange a Viewing

Viewing request form for sales properties.

"*" indicates required fields

This field is for validation purposes and should be left unchanged.
This field is hidden when viewing the form
Property address is dynamically added via the shortcode on the property details page.
This field is hidden when viewing the form
Property URL is dynamically added via the shortcode on the property details page.
This field is hidden when viewing the form
Branch ID is dynamically added via the shortcode on the property details page.
This field is hidden when viewing the form
Instruction type is dynamically added via the shortcode on the property details page.
Current Address*
Preferred Time of Viewing*
:
Properties of Interest

Our Privacy Policy and Notice describes how we use your data, who we might share it with and what rights you have.

This site is protected by reCAPTCHA and the Google Privacy Policy and Terms of Service apply.