3 BED Detached house For Sale

£495,000 Guide Price

Dorset

Tucked away near Milton Abbas, this characterful home blends space, privacy and rural charm, ideal for families and weekend escapees.

Contact Head of Sales, Blandford
Stuart Bramley

Property details

Inside

A versatile and generously proportioned three-bedroom detached barn conversion (with the option of purchasing land by separate negotiation), quietly positioned on the edge of Milton Abbas. The property combines rural character and charm with a flexible layout and unusually large rooms throughout.

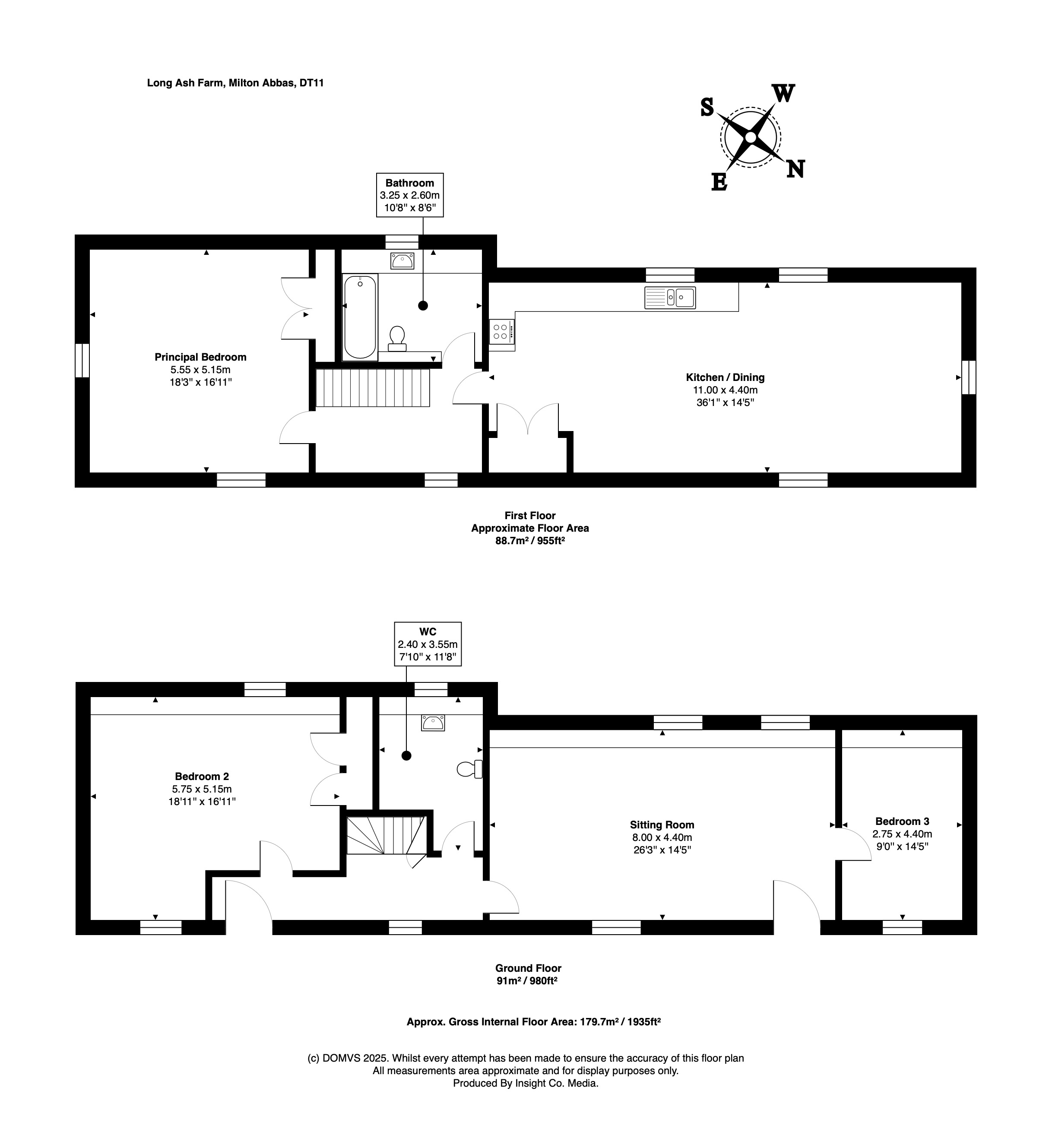
The barn is arranged over two floors and offers approximately 179.7 square metres of internal space. On the ground floor, there is a substantial SITTING ROOM filled with natural light and featuring exposed ceiling beams and stripped wooden floors. This leads through to BEDROOM THREE, which overlooks the garden and could equally serve as a study or home office. On the opposite side of the central staircase is BEDROOM TWO, another large double room, and a generous W.C., which offers scope to incorporate a shower or bath if required.

Upstairs, the layout continues to impress. A vast PRINCIPAL BEDROOM sits to one end of the barn and offers excellent proportions, with ample space for a full suite of furniture. The centrally located BATHROOM is well positioned to serve both this room and the rest of the first floor. To the other side is a striking open-plan KITCHEN / DINING ROOM extending the full length of the barn, with windows on both sides providing a bright triple aspect. The kitchen includes an integrated electric oven with hob, along with space for standard white goods, and there is ample room for a large dining table or the addition of a snug area.

This unique property has been well maintained and offers a solid foundation for anyone looking to create a long-term home. The character and proportions speak for themselves, and the rural setting offers peace and seclusion within easy reach of both Milton Abbas and surrounding villages.

Outside

Outside, the barn is approached via a gravelled driveway that opens into a large parking area with space for multiple vehicles.

The generously sized garden provides a wonderful sense of space and tranquillity, with a patio area ideally positioned for quiet enjoyment, whether for morning coffee or relaxed evenings outdoors with attractive views across open fields, creating a particularly peaceful backdrop, while pedestrian access leads conveniently around to the front of the property.

Altogether, it offers a lovely setting in which to unwind and make the most of this salubrious location, with the rural setting offering peace and seclusion within easy reach of both Milton Abbas and surrounding villages.

This is a rare opportunity to secure a distinctive home in one of Dorset’s most sought-after countryside locations.

Location

Forming part of the Long Ash Farm, one is surrounded by country walks and rural vistas. The nearby village of Milton Abbas is one of the most picture perfect villages in Dorset. With thatched cottages, a post office/general store, public house and church it also offers convenient access to Dorchester, Blandford and Poole. The village of Milton Abbas holds the distinction of being the first model village in England, founded in 1780's by Lord Milton, Earl of Dorchester, and designed by Sir William Chambers and Capability Brown.

Directions

Use what3words.com to navigate to the exact spot. Search using: fairy.approvals.perfumed

Material Information

ROOM MEASUREMENTS: Please refer to floor plan.

SERVICES: Mains electricity; oil-fired central heating; septic tank.

LOCAL AUTHORITY: Dorset Council. Tax band D.

TENURE: Freehold.

LETTINGS: Should you be interested in acquiring a Buy-to-Let investment, and would appreciate advice regarding the current rental market, possible yields, legislation for landlords and how to make a property safe and compliant for tenants, then find out about our Investor Club Our expert lettings team will be pleased to provide you with additional, personalised support; just call on the branch telephone number to take the next step.

IMPORTANT NOTICE: DOMVS and its Clients give notice that: they have no authority to make or give any representations or warranties in relation to the property. These particulars do not form part of any offer or contract and must not be relied upon as statements or representations of fact. Any areas, measurements or distances are approximate. The text, photographs (including any AI photography) and plans are for guidance only and are not necessarily comprehensive. It should not be assumed that the property has all necessary Planning, Building Regulation or other consents, and DOMVS has not tested any services, equipment or facilities. Purchasers must satisfy themselves by inspection or otherwise. DOMVS is a member of The Property Ombudsman scheme and subscribes to The Property Ombudsman Code of Practice.

Property Reference: NDO260010

Arrange a Viewing

Viewing request form for sales properties.

"*" indicates required fields

This field is for validation purposes and should be left unchanged.
This field is hidden when viewing the form
Property address is dynamically added via the shortcode on the property details page.
This field is hidden when viewing the form
Property URL is dynamically added via the shortcode on the property details page.
This field is hidden when viewing the form
Branch ID is dynamically added via the shortcode on the property details page.
This field is hidden when viewing the form
Instruction type is dynamically added via the shortcode on the property details page.
Current Address*
Preferred Time of Viewing*
:
Properties of Interest

Our Privacy Policy and Notice describes how we use your data, who we might share it with and what rights you have.

This site is protected by reCAPTCHA and the Google Privacy Policy and Terms of Service apply.

Map

Property Video

Property Floorplan

Floorplan for Milton Abbas, Dorset

Property EPC

Energy Performance Graph for Milton Abbas, Dorset

Broadband

Standard

12 Mbps Download Speed
1 Mbps Upload Speed

SuperFast

-1 Mbps Download Speed
-1 Mbps Upload Speed

UltraFast

1000 Mbps Download Speed
1000 Mbps Upload Speed

Mobile Coverage

OK
Poor
Poor
OK

Arrange a Viewing

Viewing request form for sales properties.

"*" indicates required fields

This field is for validation purposes and should be left unchanged.
This field is hidden when viewing the form
Property address is dynamically added via the shortcode on the property details page.
This field is hidden when viewing the form
Property URL is dynamically added via the shortcode on the property details page.
This field is hidden when viewing the form
Branch ID is dynamically added via the shortcode on the property details page.
This field is hidden when viewing the form
Instruction type is dynamically added via the shortcode on the property details page.
Current Address*
Preferred Time of Viewing*
:
Properties of Interest

Our Privacy Policy and Notice describes how we use your data, who we might share it with and what rights you have.

This site is protected by reCAPTCHA and the Google Privacy Policy and Terms of Service apply.