4 BED Detached house Under Offer

£575,000 Guide Price

Dorset

A comfortable and versatile detached family home in a favoured residential area. SUBJECT TO GRANT OF PROBATE.

Contact Sales Associate Director
Shireen Macdonald

Property details

Inside

Welcome to 18 Lancaster Road, an attractive family home, approached via a paved pathway leading from the driveway to the front door, which sits beneath a charming canopy porch.

Stepping inside, the welcoming ENTRANCE HALL immediately sets the tone for the rest of the home.

The SITTING ROOM is a bright, dual-aspect room, centred around an inset gas fire, with stone hearth and wood surround, perfect for cosy evenings in the cooler months. Large windows flood the room with natural light, creating a calm and inviting space.

The DINING ROOM is equally well-proportioned and easily accommodates a family table and chairs. From here, sliding patio doors open into the CONSERVATORY, enhancing the natural flow between indoor and outdoor living. The conservatory itself is a wonderful, versatile room with views overlooking the garden.

The KITCHEN is fitted with a range of wall and floor-mounted units complemented by work surfaces over. The stainless-steel one-and-a-half sink is positioned beneath a window, offering pleasant views across the garden. Integrated appliances include an eye-level electric Hotpoint™ double oven, gas hob with extractor over, with space for a fridge/freezer and plumbing for a dishwasher. A door leads to the adjoining UTILITY ROOM, providing additional storage, a sink, with space and plumbing for a washing machine. On a practical note, a door gives access to the side of the property which has a gated paved pathway leading from the driveway.

A STUDY positioned at the front of the property easily accommodates a desk and further furniture and creates an ideal space for those working from home. Discreetly positioned off the hallway is a CLOAKROOM fitted with a wash-hand basin and W.C.

Venturing up the stairs, the landing leads to four comfortable bedrooms and a family bathroom. The PRINCIPAL BEDROOM enjoys a pleasant outlook over the rear garden and benefits from free standing wardrobes providing ample storage. Adjacent, an EN-SUITE SHOWER ROOM includes a corner shower cubicle, pedestal basin with wall-mounted cabinet above, and W.C.

BEDROOM TWO is another spacious double with views over the rear garden, while BEDROOM THREE has fitted wardrobes. BEDROOM FOUR is currently arranged as a guest room but could equally serve as an additional study or hobbies room.

Completing the accommodation, the family BATHROOM comprises a panelled bath with screen and a shower over, wash-hand basin, and W.C.

SUBJECT TO GRANT OF PROBATE

Outside

The property enjoys an attractive frontage with a neatly kept lawn and mature hedging that creates a welcoming approach. A driveway leads to the double garage, providing convenient off-road parking and useful storage. To the rear, the garden is mainly laid to lawn and framed by well-established shrubs and trees, offering a pleasant sense of space and greenery. Several seating areas have been thoughtfully positioned to make the most of the sun and outlook, providing inviting spots for relaxation or entertaining. A paved pathway with gated access runs between the house and the double garage, allowing practical access to the rear garden. Designed for ease of maintenance, the outside space complements the property perfectly and provides a charming setting to enjoy the outdoors throughout the seasons.

Location

Perfectly situated for convenient access into the town centre, 18 Lancaster Road enjoys all the benefits of Dorchester’s vibrant yet historic setting. The county town of Dorset is steeped in heritage, with elegant architecture and some of the region’s most iconic period buildings lending it a distinctive charm. Surrounded by rolling countryside and just a short drive from the Jurassic Coast World Heritage Site at Weymouth, the area offers a superb blend of rural tranquillity and coastal adventure.

Dorchester is well-served with boutique shops, cafés, restaurants, a cinema, arts centre, and museums, as well as excellent schools and a mainline railway to London Waterloo. For sporting enthusiasts, there’s golf at Came Down and sailing at nearby Weymouth and Portland. Altogether, Dorchester combines history, natural beauty, and convenience, making it an exceptional place to call home.

Directions

Use what3words.com to navigate to the exact spot. Search using: purchaser.nutty.post

Material Information

ROOM MEASUREMENTS: Please refer to floor plan.

SERVICES: Mains drainage, electricity & gas. Gas central heating.

LOCAL AUTHORITY: Dorset Council. Tax band F.

BROADBAND: Standard download 17 Mbps, upload 1 Mbps. Superfast download 70 Mbps, upload 20 Mbps. Ultrafast download 1800 Mbps, upload 1000 Mbps. Please note all available speeds quoted are 'up to'.

MOBILE PHONE COVERAGE: For further information please go to Ofcom website.

PLEASE NOTE: Please note the sale of this property is subject to a Grant of Probate.

TENURE: Freehold.

LETTINGS: Should you be interested in acquiring a Buy-to-Let investment, and would appreciate advice regarding the current rental market, possible yields, legislation for landlords and how to make a property safe and compliant for tenants, then find out about our Investor Club from our expert, Katie Starkey. Katie will be pleased to provide you with additional, personalised support; just call her on the branch telephone number to take the next step.

IMPORTANT NOTICE: DOMVS and its Clients give notice that: they have no authority to make or give any representations or warranties in relation to the property. These particulars do not form part of any offer or contract and must not be relied upon as statements or representations of fact. Any areas, measurements or distances are approximate. The text, photographs (including any AI photography) and plans are for guidance only and are not necessarily comprehensive. It should not be assumed that the property has all necessary Planning, Building Regulation or other consents, and DOMVS has not tested any services, equipment or facilities. Purchasers must satisfy themselves by inspection or otherwise. DOMVS is a member of The Property Ombudsman scheme and subscribes to The Property Ombudsman Code of Practice.

Property Reference: DOR250249

Arrange a Viewing

Viewing request form for sales properties.

"*" indicates required fields

This field is for validation purposes and should be left unchanged.
This field is hidden when viewing the form
Property address is dynamically added via the shortcode on the property details page.
This field is hidden when viewing the form
Property URL is dynamically added via the shortcode on the property details page.
This field is hidden when viewing the form
Branch ID is dynamically added via the shortcode on the property details page.
This field is hidden when viewing the form
Instruction type is dynamically added via the shortcode on the property details page.
Current Address*
Preferred Time of Viewing*
:
Properties of Interest

Our Privacy Policy and Notice describes how we use your data, who we might share it with and what rights you have.

This site is protected by reCAPTCHA and the Google Privacy Policy and Terms of Service apply.

Map

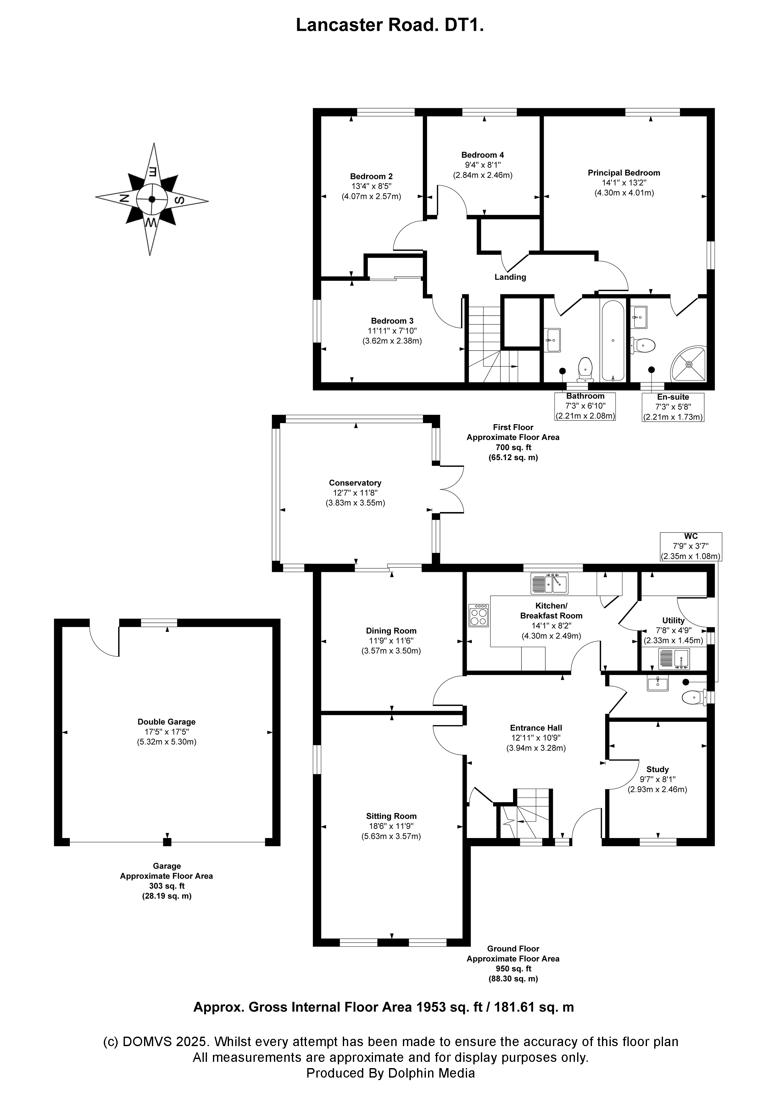
Property Floorplan

Floorplan for Dorchester, Dorset

Property EPC

Energy Performance Graph for Dorchester, Dorset

Arrange a Viewing

Viewing request form for sales properties.

"*" indicates required fields

This field is for validation purposes and should be left unchanged.
This field is hidden when viewing the form
Property address is dynamically added via the shortcode on the property details page.
This field is hidden when viewing the form
Property URL is dynamically added via the shortcode on the property details page.
This field is hidden when viewing the form
Branch ID is dynamically added via the shortcode on the property details page.
This field is hidden when viewing the form
Instruction type is dynamically added via the shortcode on the property details page.
Current Address*
Preferred Time of Viewing*
:
Properties of Interest

Our Privacy Policy and Notice describes how we use your data, who we might share it with and what rights you have.

This site is protected by reCAPTCHA and the Google Privacy Policy and Terms of Service apply.