4 BED Terraced House Under Offer

£450,000 Guide Price

Dorset

Immaculately-presented period home in the heart of this sought-after village, offering versatility and character in abundance, and no onward chain. With multiple reception areas, generous bedrooms, and a layout that adapts to a variety of lifestyles, this property is a must-see.

Contact Sales Head of Sales, Beaminster
Jonathan Gudge

Property details

Inside

This immaculately presented period home combines space, versatility, and character in abundance. With multiple reception areas, generous bedrooms, and a layout that adapts to a variety of lifestyles, it is perfectly suited to a variety of different living needs while retaining a wealth of charm and individuality. With a garage, a courtyard garden and the benefit of NO ONWARD CHAIN, this is a truly special property with a unique blend of history and practicality that must be seen.

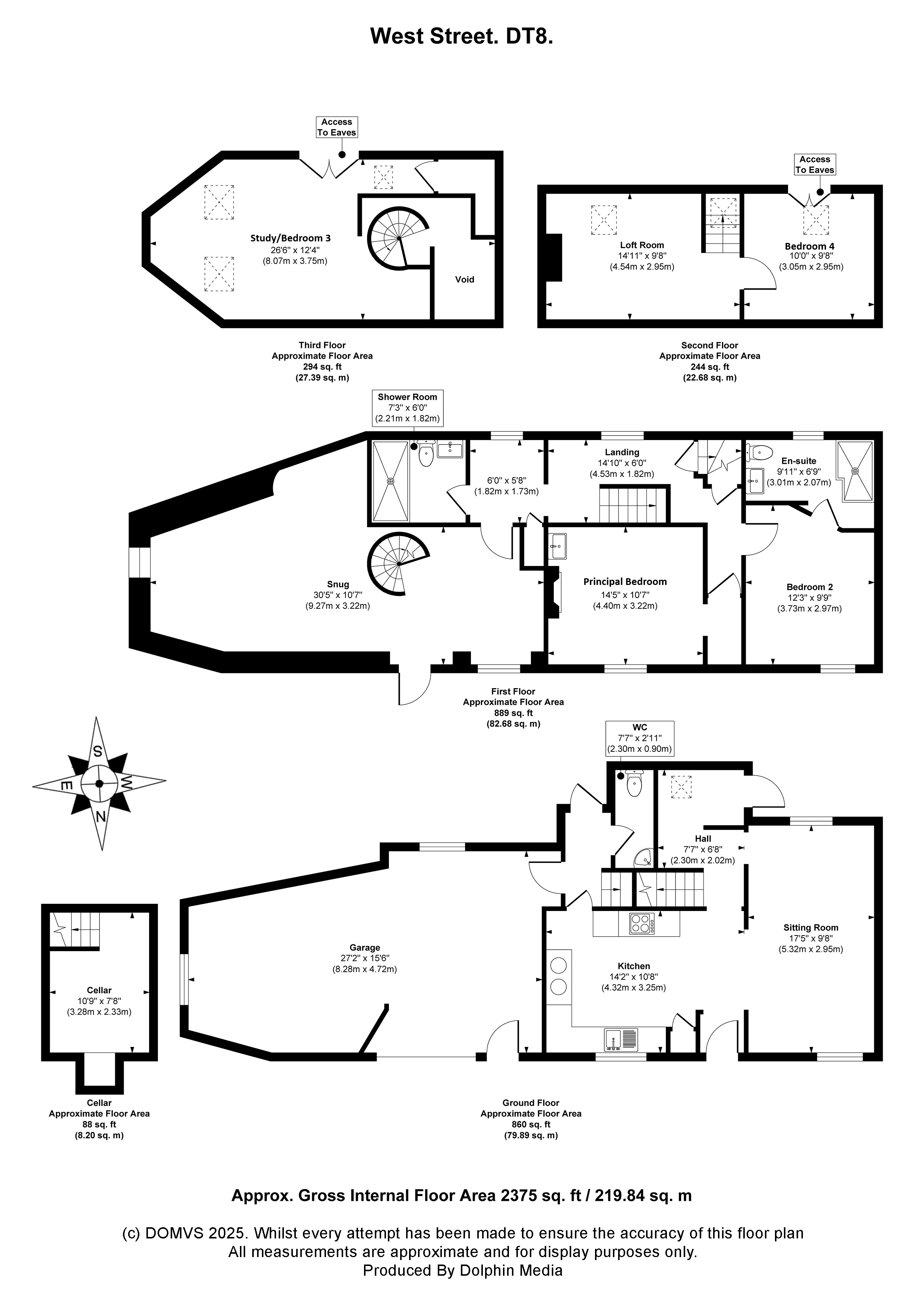
The property is approached via a sheltered front porch, creating a welcoming entrance. From here, you step directly into a central lobby which neatly connects the ground floor LIVING and KITCHEN area. To the right-hand side lies the principal SITTING ROOM, a warm and inviting space centred around a charming wood-burning stove. This versatile room also serves as a DINING ROOM, offering ample space for both everyday family living and entertaining.

To the left of the lobby is the well-appointed KITCHEN, fitted with an excellent range of modern wall and base units, along with a Belfast sink. The kitchen has been thoughtfully designed to combine both functionality and style, featuring a Rayburn™, integrated oven, separate microwave oven, induction hob, and an integrated dishwasher. With generous work surfaces and a layout ideal for those who enjoy cooking, it forms the heart of the home.

Beyond these main rooms, the property continues to impress. A back hallway provides access to the rear passage, which has space for shoes and to hang coats along with access to outside and access to the staircase leading to the first floor. On the opposite side of the kitchen, another small hallway leads into the INTEGRAL GARAGE on the left. The garage is particularly spacious, complete with an electric up-and-over door and an additional pedestrian side door and a utility area making it highly practical. From this hallway there is also access to a rear COURTYARD GARDEN, a convenient DOWNSTAIRS W.C, and a staircase leading down to the CELLAR, ideal for storage or further use subject to needs.

The first floor is accessed via the main staircase, which rises to a bright and airy landing. To the right-hand side are the PRINCIPAL BEDROOM and BEDROOM TWO. The Principal Bedroom is a generous double room enjoying an abundance of natural light and delightful countryside views. It also features a wash hand basin for convenience. BEDROOM TWO, currently used as a guest room, offers ample space for wardrobes and benefits from its own EN-SUITE SHOWER ROOM. The EN-SUITE is well fitted with a large shower cubicle, wash hand basin, and low-level W.C.

Also located on this floor is a recently updated SHOWER ROOM. Finished to a high specification, it comprises a spacious cubicle with mixer shower, a wash hand basin with vanity unit below, an illuminated mirror, heated towel rail, and low-level W.C.

One of the most striking features of this property is the unique additional RECEPTION SPACE beyond. This delightful room offers an additional SNUG, with exposed beams and plenty of character. It is flooded with natural light and features an original old door, adding to its charm. From here, a spiral staircase rises to a MEZZANINE level, currently utilised as a STUDY/ BEDROOM 3. The MEZZANINE is a particularly attractive space, with metal balustrades and a large storage cupboard at one end.

From the first floor landing, a second staircase provides access to a large LOFT ROOM and BEDROOM 4. Both are bright and spacious, offering flexibility for a variety of uses.

Outside

Externally, the property enjoys a private, low-maintenance COURTYARD GARDEN to the rear, perfect for relaxing outdoors and enjoying the sunshine. To the front, OFF ROAD PARKING is available both in front of and within the INTEGRAL GARAGE, providing secure space for up to two vehicles.

Location

Broadwindsor has much to offer residents of all ages. With an active and friendly community and amenities including a village shop, pub, village bakery, church, village hall and primary school, play park as well as a broad range of clubs which include a renowned cricket club and societies to suit many interests. There is also Redlands Yard which provides a range of Artisan businesses, shops and a Cafe/Restaurant. Broadwindsor has an active village community and is approximately 2½ miles west of Beaminster, 13 miles from Lyme Regis and 6½ miles north of Bridport.

Directions

Use what3words.com to navigate to the exact spot. Search using: overhear.handbook.koala

Material Information

ROOM MEASUREMENTS: Please refer to floor plan.

SERVICES: Mains drainage and electricity; oil-fired central heating.

LOCAL AUTHORITY: Dorset Council. Tax band E.

BROADBAND: Standard download 20 Mbps, upload 1 Mbps. Please note all available speeds quoted are 'up to'.

MOBILE PHONE COVERAGE: For further information please go to Ofcom website.

TENURE: Freehold.

LETTINGS: Should you be interested in acquiring a Buy-to-Let investment, and would appreciate advice regarding the current rental market, possible yields, legislation for landlords and how to make a property safe and compliant for tenants, then find out about our Investor Club from our expert, Alexandra Holland. Alexandra will be pleased to provide you with additional, personalised support; just call her on the branch telephone number to take the next step.

IMPORTANT NOTICE: DOMVS and its Clients give notice that: they have no authority to make or give any representations or warranties in relation to the property. These particulars do not form part of any offer or contract and must not be relied upon as statements or representations of fact. Any areas, measurements or distances are approximate. The text, photographs (including any AI photography) and plans are for guidance only and are not necessarily comprehensive. It should not be assumed that the property has all necessary Planning, Building Regulation or other consents, and DOMVS has not tested any services, equipment or facilities. Purchasers must satisfy themselves by inspection or otherwise. DOMVS is a member of The Property Ombudsman scheme and subscribes to The Property Ombudsman Code of Practice.

Property Reference: BEA250032

Arrange a Viewing

Viewing request form for sales properties.

"*" indicates required fields

This field is for validation purposes and should be left unchanged.
This field is hidden when viewing the form
Property address is dynamically added via the shortcode on the property details page.
This field is hidden when viewing the form
Property URL is dynamically added via the shortcode on the property details page.
This field is hidden when viewing the form
Branch ID is dynamically added via the shortcode on the property details page.
This field is hidden when viewing the form
Instruction type is dynamically added via the shortcode on the property details page.
Current Address*
Preferred Time of Viewing*
:
Properties of Interest

Our Privacy Policy and Notice describes how we use your data, who we might share it with and what rights you have.

This site is protected by reCAPTCHA and the Google Privacy Policy and Terms of Service apply.

Map

Property Floorplan

Floorplan for Broadwindsor, Dorset

Property EPC

Energy Performance Graph for Broadwindsor, Dorset

Arrange a Viewing

Viewing request form for sales properties.

"*" indicates required fields

This field is for validation purposes and should be left unchanged.
This field is hidden when viewing the form
Property address is dynamically added via the shortcode on the property details page.
This field is hidden when viewing the form
Property URL is dynamically added via the shortcode on the property details page.
This field is hidden when viewing the form
Branch ID is dynamically added via the shortcode on the property details page.
This field is hidden when viewing the form
Instruction type is dynamically added via the shortcode on the property details page.
Current Address*
Preferred Time of Viewing*
:
Properties of Interest

Our Privacy Policy and Notice describes how we use your data, who we might share it with and what rights you have.

This site is protected by reCAPTCHA and the Google Privacy Policy and Terms of Service apply.